物件価格
月々のお支払い例
1,659.77円
※金利1.20% 借入金額:物件価格、借入期間35年
リフォームプランを選択してシミュレーション
リフォーム総額
225万円
借入金額
10,825万円
月々のお支払い例
万円
年
%
※サンプルとして、頭金0円/ボーナス払い0円の設定にて、予め金利を表示しています。
ご希望のローンがある場合は、店舗までお問合せいただくか、数値を入れ替えてご利用ください。
物件の特徴
主な設備
公営水道
公共下水
都市ガス
ディスポーザー
カウンターキッチン
システムキッチン
追焚機能
浴室乾燥機
温水洗浄便座
室内洗濯機置場
床暖房
エアコン
BS
CS
CATVインターネット
オートロック
モニタ付インターホン
ウォークインクローゼット
収納スペース
バルコニー
主な特徴
管理人日勤
角部屋
ペット対応
☆月々29.9万円~
☆最寄駅から東梅田駅まで6分
☆4沿線3駅利用可
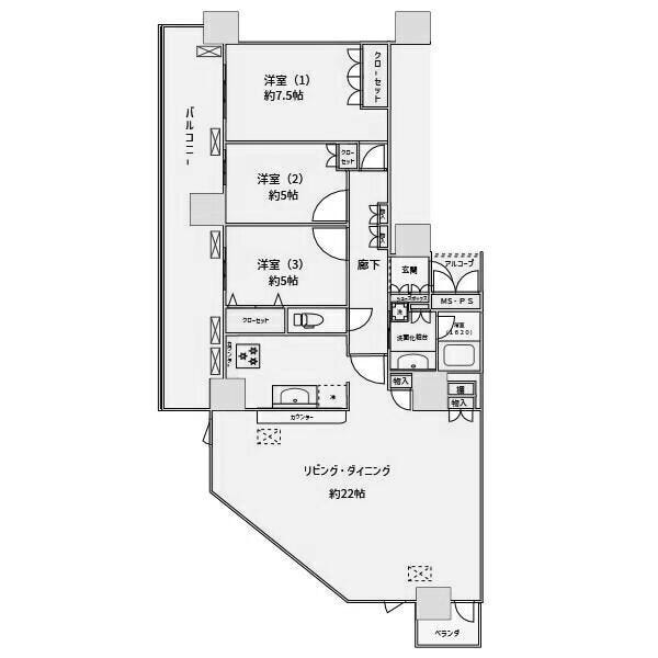
☆22帖LDK
☆北西角部屋
☆ペット可
☆近隣に学校、幼稚園、保育園、公園あり
☆複数スーパーあり
【内覧会開催中】
本日ご案内可能な場合もございます。
複数件併せてご内見も可能♪
他の掲載物件もまとめてご内見頂けます。気になる物件をお教え下さい。
☆0120ー684-571
お気軽にお電話ください♪
☆立地のポイント
【都島駅】徒歩6分
【桜ノ宮駅】徒歩10分
【天神橋筋六丁目駅】徒歩19分
物件概要
| 価格 | 1億600万円 | 間取り | 3LDK |
|---|---|---|---|
| 物件種別 | 中古マンション | ||
| 所在地 | 大阪府大阪市都島区善源寺町2丁目 | ||
| アクセス | 大阪市谷町線『都島』 徒歩6分 (約480m) JR大阪環状線『桜ノ宮』 徒歩10分 (約800m) 阪急電鉄千里線『天神橋筋六丁目』 徒歩19分 (約1500m) |
||
| 専有面積 | 内法 94.03㎡ | 所在階 | 38階建/36階部分 |
| 主要採光 | 北西向 | バルコニー | 北西向19.90㎡ |
| その他 | |||
| 権利 | 所有権 |
||
| 保証・評価 | |||
| リフォーム | |||
| 総戸数 | 445戸 | 面積 | |
| 築年月 | 2012年(平成24年)01月築 | 建物構造 | RC |
| 施工会社 | |||
| 管理会社 | 穴吹ハウジングサービス | 管理方式 | 全部委託 日勤管理 |
| 駐車場 | |||
| 都市計画 | 市街化区域 |
用途地域 | 準工業 |
| 建ぺい/容積率 | 60% / 200% | 土地国土法 | |
| 法令制限 | |||
| 小学区 | 友渕小学校 徒歩12分 (約950m) | 中学区 | 友渕中学校 徒歩6分 (約470m) |
| 現況 | 空 | 引渡 | 相談 |
| 管理費 | 17,600円/月 | 修繕積立金 | 13,430円/月 |
| その他費用 | |||
| 周辺環境 | ファミリーマート善源寺町2丁目店 徒歩3分 (約230m) 関西スーパー 善源寺店 徒歩4分 (約300m) 高倉町1丁目 バス停 徒歩5分 (約360m) セブンイレブン高倉町1丁目店 徒歩6分 (約460m) ミニストップ 都島友渕店 徒歩6分 (約470m) ライフ 都島高倉店 徒歩7分 (約500m) 友渕中学校 徒歩6分 (約470m) ファミリーマート善源寺町2丁目店 徒歩3分 (約230m) 関西スーパー 善源寺店 徒歩4分 (約300m) 高倉町1丁目 バス停 徒歩5分 (約360m) セブンイレブン高倉町1丁目店 徒歩6分 (約460m) ミニストップ 都島友渕店 徒歩6分 (約470m) ライフ 都島高倉店 徒歩7分 (約500m) 友渕中学校 徒歩6分 (約470m) |
||
| 備考 | ・ファミリーマート善源寺町2丁目店まで徒歩3分(約230m) ・関西スーパー 善源寺店まで徒歩4分(約300m) ・高倉町1丁目 バス停まで徒歩5分(約360m) ・ウエルシア都島友渕店まで徒歩5分(約340m) ・キリン堂 都島東店まで徒歩5分(約380m) ・セブンイレブン高倉町1丁目店まで徒歩6分(約460m) ・ミニストップ 都島友渕店まで徒歩6分(約470m) ・ライフ 都島高倉店まで徒歩7分(約500m) ・友渕中学校まで徒歩6分(約470m) ・キリン堂 都島駅前店まで徒歩6分(約470m) |
||
| 物件番号 | 4224893 | 取引態様 | 媒介 |
物件価格
月々のお支払い例
1,659.77円
※金利1.20% 借入金額:物件価格、借入期間35年
リフォームプランを選択してシミュレーション
リフォーム総額
225万円
借入金額
10,825万円
月々のお支払い例
万円
年
%
※サンプルとして、頭金0円/ボーナス払い0円の設定にて、予め金利を表示しています。
ご希望のローンがある場合は、店舗までお問合せいただくか、数値を入れ替えてご利用ください。













担当エージェント:尾関 親代
東梅田まで6分の好立地!
通勤通学に便利な最寄り駅まで徒歩5分!
落ち着いた住環境でファミリー層にも単身者にも◎♪
住宅ローン相談会開催中です!
ぜひお気軽にお問い合わせください!
■36階北西角部屋
リビング床暖房、ディスポーザー
宅配ボックス、ペット飼育可能(規約制限あり)
■共有施設
温泉施設(サウナ付き)、ゲストルーム
リフレッシュサロン、スカイビューラウンジ
キッズルーム、マルチルーム、サウンドスクエア