物件価格
月々のお支払い例
1,659.77円
※金利1.20% 借入金額:物件価格、借入期間35年
リフォームプランを選択してシミュレーション
リフォーム総額
225万円
借入金額
4,205万円
月々のお支払い例
万円
年
%
※サンプルとして、頭金0円/ボーナス払い0円の設定にて、予め金利を表示しています。
ご希望のローンがある場合は、店舗までお問合せいただくか、数値を入れ替えてご利用ください。
物件の特徴
主な設備
電気
公営水道
公共下水
ハイルーフ駐車可能
主な特徴
3階建以上
☆月々11.2万円~
☆2023年9月築の築浅物件!
☆井高野駅(始発駅)から京橋駅まで最短24分
☆2駅利用可
☆16帖LDK
☆駐車場1台&ハイルーフ車可!
☆近隣に学校、幼稚園、保育園、公園あり
☆複数スーパーあり
【内覧会開催中】
本日ご案内可能な場合もございます。
複数件併せてご内見も可能♪
他の掲載物件もまとめてご内見頂けます。気になる物件をお教え下さい。
☆0120ー684-571
お気軽にお電話ください♪
☆立地のポイント
【井高野駅※始発駅】徒歩約2分
【瑞光四丁目駅】徒歩約13分
物件概要
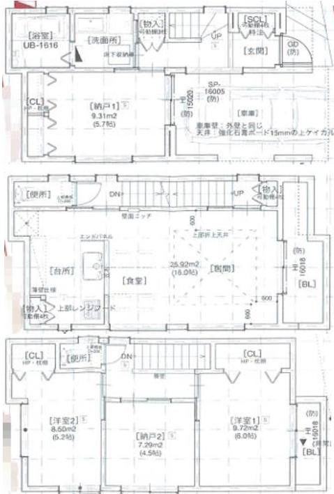
| 価格 | 3,980万円 | 間取り | 4LDK |
|---|---|---|---|
| 物件種別 | 中古一戸建て | ||
| 所在地 | 大阪府大阪市東淀川区北江口4丁目 | ||
| アクセス | 大阪市今里筋線『井高野』 徒歩2分 (約160m) 大阪市今里筋線『瑞光四丁目』 徒歩13分 (約1000m) 阪急電鉄京都線『相川』 徒歩20分 (約1600m) |
||
| 建物面積 | 93.14㎡ | 駐車場 | なし |
| 築年月 | 2023年(令和5年)09月築 | ||
| 建物構造 | 木造 3階建 | 工法 | |
| 主要採光 | バルコニー | ||
| 保証・評価 | |||
| リフォーム | |||
| 土地面積 | 公54.98㎡(16.63坪) | 接道 | 東側(公道)幅 約5.9m |
| 私道 | セットバック | 無 | |
| 地目 | 宅地 | 地勢 | 平坦 |
| 権利 | 所有権 |
||
| 都市計画 | 市街化区域 |
用途地域 | 2種中高 |
| 建ぺい/容積率 | 60% / 200% | 土地国土法 | |
| 許可番号 | 建築基準法 | ||
| 法令制限 | |||
| 小学区 | 井高野小学校 徒歩7分 (約550m) | 中学区 | 井高野中学校 徒歩9分 (約700m) |
| 現況 | 空 | 引渡 | 相談 |
| その他費用 | |||
| 周辺環境 | こみち幼稚園 徒歩15分 (約1130m) | ||
| 備考 | |||
| 物件番号 | 4623413 | 取引態様 | 媒介 |
物件価格
月々のお支払い例
1,659.77円
※金利1.20% 借入金額:物件価格、借入期間35年
リフォームプランを選択してシミュレーション
リフォーム総額
225万円
借入金額
4,205万円
月々のお支払い例
万円
年
%
※サンプルとして、頭金0円/ボーナス払い0円の設定にて、予め金利を表示しています。
ご希望のローンがある場合は、店舗までお問合せいただくか、数値を入れ替えてご利用ください。
値下げ物件































担当エージェント:尾関 親代
最寄駅(始発駅)から京橋まで最短24分の好立地!
落ち着いた住環境でファミリー層にも単身者にも◎♪
住宅ローン相談会開催中です!
ぜひお気軽にお問い合わせください!